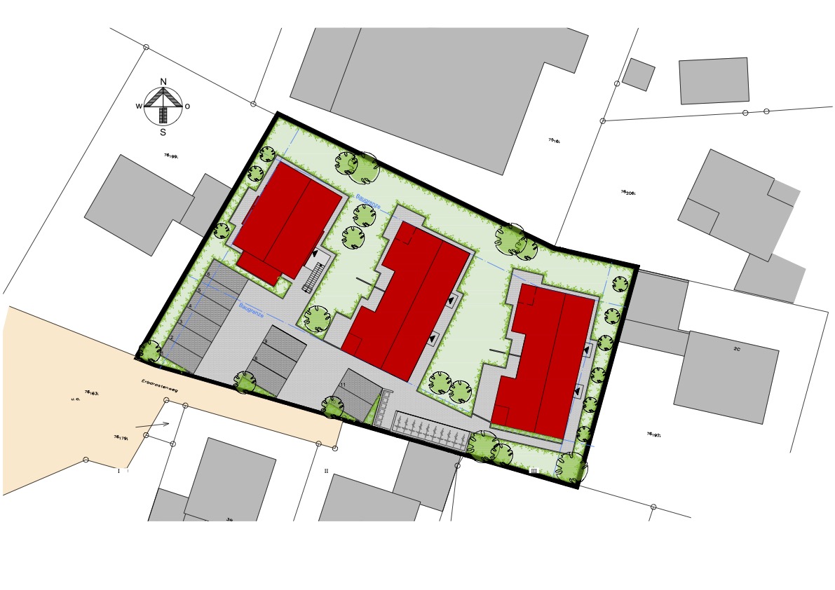
Erbdrostenweg , Nordhorn
Maßstäbe für die Zukunft
STATUS
fertiggestellt 2019
ANSCHRIFT
Erbdrostenweg 49, 49a, 51, 53, 55, 57, Nordhorn
AUFTRAG
Generalplanung, Realisierung, Vermietung, Verwaltung
Doppelhäuser / Zweifamilienwohnhaus, 6 Wohneinheiten
Brandlecht, ein beschaulicher Stadtteil im Süden der Stadt Nordhorn zeigt sich als naturnaher, ruhiger Wohnort. In unmittelbarer Nähe verläuft die Vechte und angrenzend daran befindet sich das Naturschutzgebiet Tillenberge.
6 Wohneinheiten in zwei Doppelhäusern und einem Zweifamilienwohnhaus, mieterfreundlich, lichtdurchflutet und nachhaltig. Ein Investment welches mit Fertigstellung ein risikoarmes, positives Ergebnis zeigt.
- KfW40 als klimafreundlicher Neubau
- Doppelhaushälften mit ca. 100 m2 Wohnfläche
- Zweifamilienwohnhaus mit ca. 85 m2 Wohnfläche
- Gesamtwohnfläche ca. 576 m2
CON3 oblag die Begleitung zum Grundstückskauf, Planung, Finanzierungsberatung, Realisierung sowie Vermietung und Verwaltung im internen Partnernetzwerk.
